Коммерческое помещение с окном 195 000 €

Monte-Carlo (Monaco)
Код. :
EEM-V-157
Тип объекта :
Transfer of lease rights
Жилая площадь :
145 м²
Этаж :
Rdc
Страна :
Monaco
Район :
Monte-Carlo

Contact an agent

Коммерческое помещение с окном
Код : EEM-V-157

Обязательное поле

Общая площадь
145м²

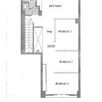
коммерческое помещение типа триплекс, идеально расположенное на авеню де Гранд-Бретань.

  • Первый этаж : Площадь около 50 м² с видом на улицу с большим окном, обеспечивающим отличную видимость.
  • Нижний уровень: Пространство площадью 30 м², идеально подходит для хранения вещей или гардероба, включая туалет.
  • Второй этаж : Площадь около 65 м², светлая, с окном, из которого открывается захватывающий вид на море.

    Сдаем в аренду все магазины, кроме общепита.

    Коммерческая  аренда - Текущая ежемесячная арендная плата: 4.422 € + 888 € сборы.

Местоположение объекта

Floor Plans

Этот документ не является контрактом. Все размеры, площади и дистанции рассчитаны приблизительно. Описания и планы ориентировочны и их точность не гарантируется. Лишь некоторые части объектов показаны на фотографиях. Условия продажи могут быть изменены в любой момент в случае изменения цены, продажи, снятия с продажи и т д.